top 105+ Pictures silver strand military housing photos Superb

top 105+ Pictures silver strand military housing photos Superb

โ€”

by

in

top showcases captivating images of silver strand military housing photos gathered and meticulously curated by the website galleryz.online. Furthermore, you can find more related images in the details below.

silver strand military housing photos

top 105+ Pictures silver strand military housing photos Superb
Silver Strand Military Housing San Diego
My Image 2
SS2C25 | Floorplans | Silver Strand II | Lincoln Military Housing
My Image 3
SS2C25 | Floorplans | Silver Strand II | Lincoln Military Housing
My Image 4
STRC2A | Floorplans | Silver Strand I | Lincoln Military Housing
My Image 5
Military Housing in Coronado, CA | Silver Strand I
My Image 6
STRD2A | Floorplans | Silver Strand I | Lincoln Military Housing
My Image 7
SSLB1 | Floorplans | Silver Strand II | Lincoln Military Housing
My Image 8
SSUB1 | Floorplans | Silver Strand II | Lincoln Military Housing
My Image 9
Military Housing in Coronado, CA | Silver Strand I
My Image 10
Silver Strand Training Complex | Flickr – Photo Sharing!
My Image 11
MND-B engineers turn an old hanger into new digs for Soldiers | Article …
My Image 12
Silver Strand Community Center – Tectonics
My Image 13
Liberty Military Housing – Silver Strand District | Coronado CA
My Image 14
Military Housing in Coronado, CA | Silver Strand I
My Image 15
Military Housing in Coronado, CA | Silver Strand I
My Image 16
Silver Strand Homes for Sale in Marina del Rey – Marina del Rey Real Estate
My Image 17
galveston housing authority application – Carrol Dooley
My Image 18
Navy’s Coastal Campus – On Time and On Budget – Coronado Times
My Image 19
10+ images about Oxnard on Pinterest | St john’s, Church and Egg pizza
My Image 20
The Silver Strand Mine – MineListings.com
My Image 21
New Dana Strand Village – Los Angeles, California
My Image 22
Silver Strand in 2021 | Luxury vinyl flooring, Luxury vinyl, Waterproof …
My Image 23
Coronado Naval Base Housing & Information | MilitaryByOwner
My Image 24
Silver Strand Beach – 19 tips from 603 visitors
My Image 25
The Strand Rochdale Boroughwide Housing | SDA Consulting LLP
My Image 26
Mohawk Caldwell Silver Strand
My Image 27
Silver Strand State Beach: Explore The Best Campground Ever! | Tripboba.com
My Image 28
Brondby Strand housing scheme โ€” danish design review
My Image 29
Sherwin Williams Silver Strand SW 7057 – Soothe You Space with This …
My Image 30
Mohawk Caldwell Silver Strand 6″ x 36″ Luxury Vinyl Plank | Nebraska …
My Image 31
Silver Strand, CA
My Image 32
Silver Strand : Caldwell : Mohawk Lvt : Luxury Vinyl
My Image 33
Silver Strand State Beach, CA | The Dyrt
My Image 34
Silver Creek Senior Living 62+ Apartments – Kensington, MD | Apartments.com
My Image 35
Remodelaholic | Color Spotlight: Silver Strand by Sherwin-Williams
My Image 36
Villas on The Strand | 1524 Avenue B, Galveston, TX 77550 …
My Image 37
Silver Strand Paint Sale Offers, Save 41% | jlcatj.gob.mx
My Image 38
Silver Strand State Beach Parking Lots to be Closed July 3-5 – Coronado …
My Image 39
Triple Strand Concertina Wire Army Fm – Army Military
My Image 40
CWGC Cemetery: STRAND MILITARY CEMETERY | Craven’s Part in The Great War
My Image 41
Japanese Friendship Garden – A Traditional Japanese Garden, Winding …
My Image 42
Grand Strand – MOAA – Affordable Housing
My Image 43
Oak Silver Strand – District Floor Depot
My Image 44
Image result for silver strand vs sea salt | Silver strand, Mindful …
My Image 45
Remodelaholic | Color Spotlight: Silver Strand by Sherwin-Williams
My Image 46
Silver Strand SB, CA | SX-70, TZ Edge Cut | moominsean | Flickr
My Image 47
Silver Strand SW 7057 by Sherwin Williams | Paint Colors | Pinterest …
My Image 48
Villas on The Strand | 1524 Avenue B, Galveston, TX 77550 …
My Image 49
Silver Strand State Beach, CA
My Image 50
Silver Strand SW7057 Curated Color on Paintable – Dura Supreme Cabinetry
My Image 51
Photos at Silver Strand State Beach – Coronado, CA
My Image 52
Silver Strand SW 7057 Bath room w/ Intellectual Gray SW 7045. | New …
My Image 53
Silver Strand IV – Greenlane Gallery Dingle
My Image 54
Silver strand, Kitchen colors, Interior paint
My Image 55
Silver Strand Beach | Oxnard beach, Beach, City of angels
My Image 56
Villas on the Strand | Galveston, TX Low Income Apartments
My Image 57
Villas on the Strand | Galveston, TX Low Income Apartments
My Image 58
Photos at Silver Strand State Beach – Coronado, CA
My Image 59
Kiddie Beach Park – Visit Oxnard
My Image 60
Silver Strand – The Corrs | Songs, Reviews, Credits | AllMusic
My Image 61
Villas on the Strand | Galveston, TX Low Income Apartments
My Image 62
Silver Strand SB – California Trail Map
My Image 63
Silver Strand State Beach: Explore The Best Campground Ever! | Tripboba.com
My Image 64
Villas on the Strand | Galveston, TX Low Income Apartments
My Image 65
๐Ÿ˜๐Ÿ˜˜๐Ÿ˜ Military Girl, Amazing Women, Good Woman, Mรคdchen In Uniform …
My Image 66
550 7 Strand Military Spec Paracord MIL-C-5040H Tan | Outdoor Bunker
My Image 67
Silver Strand SW7057 Paint by Sherwin-Williams – modlar.com
My Image 68
File:How-the-Brigadier-Saved-the-Army-strand-nov-1902-3.jpg – The …
My Image 69
Silver Strand, Co Wicklow, Ireland Stock Photo: 85693239 – Alamy
My Image 70
Silver Strand State Beach San Diego, California | Silver Strโ€ฆ | Flickr
My Image 71
SW Silver Strand on top | Bedroom paint colors master, Dining room …
My Image 72
PANDORA Jewelry Pink Sparkling Slider Tennis Cubic Zirconia Bracelet in …
My Image 73
Brigade Support Battalion NCOs get back to basics | Article | The …
My Image 74
Silver Strand Half Marathon & 5K on Sunday, November 15th (Coronado …
My Image 75
UPC 744704775696 – Daltile Meier Park Silver Strand 12 in. x 24 in …
My Image 76
silver strand beach, Oxnard, ca this is the beach that we went to all …
My Image 77
An innovative provider of AMR metering technologies | Orsis
My Image 78
Silver Strand Surf Forecast and Surf Reports (CAL – Ventura, USA)
My Image 79
The Strand | 909 Gravier Street | New Orleans | Furnished Apartments …
My Image 80
All Coronado Unified School District Campuses Celebrate Veterans’ Day …
My Image 81
4mm 7 Strand Army Military 550 Paracord Reel Basha Tent Bivi Camping …
My Image 82
Photos at Silver Strand State Beach – Coronado, CA
My Image 83
Photos at Silver Strand State Beach – Coronado, CA
My Image 84
Photos at Silver Strand State Beach – Coronado, CA
My Image 85
The Strand | 1401 Riverplace Boulevard | Jacksonville | Furnished …
My Image 86
Silver Strand State Beach – Coronado, CA
My Image 87
Silver Strand
My Image 88
Luxury Vinyl | Metroflor Engage Genesis 1200 Silver Strand | Flooring …
My Image 89
Silver Strand & Simply White Master Bedroom | Harbour Breeze Home
My Image 90
Bell Pavilion House – San Diego, California
My Image 91
The Strand | 1401 Riverplace Boulevard | Jacksonville | Furnished …
My Image 92
Silver Strand Foundation DE, Inc. R.E.D. Fridays T-shirt Custom Ink …
My Image 93
Historic Myrtle Beach Air Force Base Museums – Home | Facebook
My Image 94
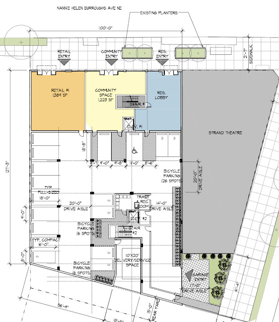
The Bike Estate – Strand Residences in Deanwood Adds 86 Units of …
My Image 95
military Barbed triple strand concertina razor wire
My Image 96
Silver Strand State Beach | Silver Strand State Beach (2019)โ€ฆ | Flickr
My Image 97
MX103 silver Strand P1010059a | African Beads: ;The earliestโ€ฆ | Flickr
My Image 98
Silver Strand Board
My Image 99
Liquid Silver Strand Necklace | eBay
My Image 100
Photos at Silver Strand State Beach – Coronado, CA
My Image 101
Triboard Housing Panel Interview with Strand Homes and Peter Wolfkamp …
My Image 102
Silver Strand IV – Greenlane Gallery Dingle
My Image 103
Silver Strand | Favorite Paint Colors | Bloglovin’
My Image 104
File:How-the-Brigadier-Saved-the-Army-strand-nov-1902-7.jpg – The …
My Image 105
Photos at Silver Strand State Beach – Coronado, CA

STACKING 59 Ounces Of SILVER This Week
We extend our gratitude for your readership of the article about silver strand military housing photos at galleryz.online. We encourage you to leave your feedback, and there’s a treasure trove of related articles waiting for you below. We hope they will be of interest and provide valuable information for you.

Posts: silver strand military housing photos
Categories: Album
Author: galleryz.online